HOME
ABOUT US
PROJECTS
CLIENTS
CONTACT
✕
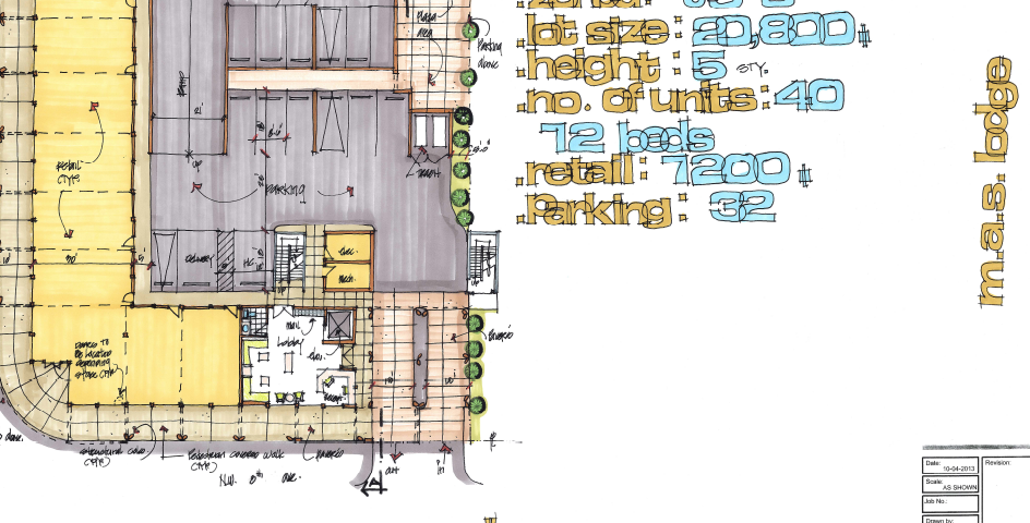
Student Housing
Home
OUR RECENT PROJECTS
Land Planning
Student Housing
Miami Affordable Dpto. Int.
October 15, 2020
Hotel Entry Underground
October 6, 2020
Show all
Related posts
October 6, 2020
Hotel Entry Underground
Read more